大足生活通看房网
新房
二手房
租房
厂房
首页
新房
二手房
租房
看房团
问答
资讯
小区
当前位置:
首页
二手房详情
【超级无敌捡漏房】
发布时间: 2025-10-10 ( 昨天 21:16更新 )
浏览次数: 61
二手房基本信息
售价:
48
万元
户型:
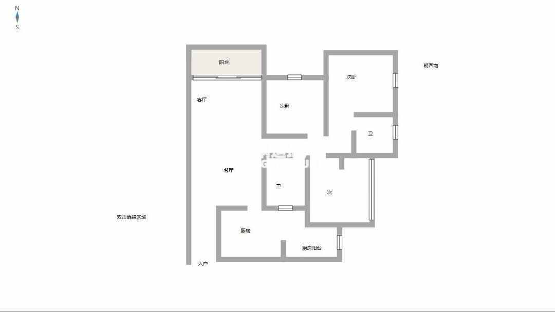
3室2厅2卫
面积:
96.00㎡
装修:
精装修
楼层:
中层/32层
朝向:
朝南
年代:
年代不详
地址:
地址不详
详情描述
新城区大小区,居家安静,户型方正拎包入住
温馨提示:
本网站所有图片和资料由开发商或个人提供,不做合同要约,资料图片可能与实际有一定出入,仅供参考,请以实际为准。本网站不得发布虚假房源信息、不得发布虚假房源广告;不得侵犯任何第三方的合法权益。
胡华珍
经纪人
18996296867
联系我时请说是在大足生活通看房网看到的
微信扫码联系
TA的推荐
吾悦小高中间楼层
3室2厅2卫
101.00㎡
66万元
新城区精装三室双卫42.8万
3室2厅2卫
123.00㎡
42.8万元
御墅林枫别墅出售
6室3厅4卫
295.00㎡
260万元
新城区三室双卫40多万
3室2厅2卫
107.00㎡
46.8万元
香国公园旁边三室双卫一口价45.8万
3室2厅2卫
109.00㎡
45.8万元